|
本系列風機具有效率高、噪音低、壓力曲線平穩、使用范圍廣等特點。 4-72(79)離心風機
離心風機 ,主要用于廠礦企業、體育館、歌劇院、地下室、大小賓館、酒樓、商場或者其他大型建筑的室內通風換氣、除塵降溫等用途,也可以與其他各類機械設備配套做氣體循環使用。
輸送的氣體介質為空氣和其他不自然、對人體無害、無腐蝕性的氣體。B4-72(79)離心風機采用防爆電機,可作為易燃揮發性氣體的通風換氣用,氣體內不允許有粘性物質塵土及固體雜質,介質溫度一般不超過50℃(最高不超過80℃)。
根據不同的需要可以制作成A式電機傳動、C式皮帶傳動,D式聯軸器傳動等,也可以根據不同防腐防爆要求,制作成4-72(79)離心風機、防爆風機,4-72(79)離心風機
防腐風機等。對于4-72(79)離心風機 A式電機直連式傳動的離心風機 ,作為專用的水洗臺、拋光專用風機。
性能范圍: 流量:991~221730 m3/h 全壓:196~3195
Pa。 |
|
4-72(79)離心風機型號::2.8#-6#風量:565-15455m3/h 風壓:176-3334Pa 特點:采用A式直聯傳動,后傾式離心葉輪,通風換氣、可制作成防爆及防腐型,有鋼制和玻璃鋼制作 應用:各類大中型工廠和高級民用建筑.大型場館 |
|
4-72(79)離心風機型號:6#-12#風量:4420-48800m3/h 風壓:317-2118Pa 特點:采用C式皮帶傳動,后傾式離心葉輪,通風換氣、可制作成防爆及防腐型,有鋼制和玻璃鋼制作 應用:各類大中型工廠和高級民用建筑.大型場館 |
|
風機分左旋和右旋兩種型式,從電機(皮帶輪)側正視,葉輪按順時針方向旋轉為右旋,逆時針旋轉為左旋。A式為電機直聯傳動, B、C、E式為皮帶傳動,D、F式為聯軸器傳動。
| 型號 |
轉速 (rpm) |
風量 (m3/h) |
全壓 (Pa) |
功率 (KW) |
| 2.8A | 2900 | 1131 | 994 | 1.5 |
| 1310 | 966 | |||
| 1480 | 933 | |||
| 1659 | 887 | |||
| 1828 | 835 | |||
| 2007 | 770 | |||
| 2177 | 702 | |||
| 2356 | 606 | |||
| 1450 | 565 | 248 | 0.55 | |
| 655 | 241 | |||
| 740 | 233 | |||
| 829 | 221 | |||
| 914 | 208 | |||
| 1003 | 192 | |||
| 1088 | 175 | |||
| 1178 | 151 | |||
| 3.2A | 2900 | 1688 | 1300 | 2.2 |
| 1955 | 1263 | |||
| 2209 | 1220 | |||
| 2476 | 1160 | |||
| 2729 | 1091 | |||
| 2996 | 1006 | |||
| 3250 | 918 | |||
| 3517 | 792 | |||
| 1450 | 884 | 324 | 1.1 | |
| 978 | 315 | |||
| 1104 | 304 | |||
| 1238 | 289 | |||
| 1365 | 272 | |||
| 1498 | 251 | |||
| 1625 | 229 | |||
| 1758 | 198 | |||
| 3.6A | 2900 | 2664 | 1578 | 3 |
| 3045 | 1531 | |||
| 3405 | 1481 | |||
| 3786 | 1419 | |||
| 4146 | 1343 | |||
| 4527 | 1256 | |||
| 4887 | 1144 | |||
| 5268 | 989 | |||
| 1450 | 1332 | 393 | 1.1 | |
| 1522 | 381 | |||
| 1706 | 369 | |||
| 1893 | 353 | |||
| 2073 | 335 | |||
| 2263 | 313 | |||
| 2444 | 285 | |||
| 2634 | 247 | |||
| 4A | 2900 | 4012 | 2014 | 5.5 |
| 4506 | 1969 | |||
| 4973 | 1915 | |||
| 5468 | 1830 | |||
| 5962 | 1723 | |||
| 6457 | 1606 | |||
| 6924 | 1459 | |||
| 7419 | 1320 | |||
| 1450 | 2006 | 501 | 1.1 | |
| 2253 | 490 | |||
| 2487 | 476 | |||
| 2734 | 455 | |||
| 2981 | 429 | |||
| 3228 | 400 | |||
| 3462 | 363 | |||
| 3709 | 329 | |||
| 4.5A | 2900 | 5712 | 2554 | 7.5 |
| 6416 | 2497 | |||
| 7081 | 2428 | |||
| 7785 | 2320 | |||
| 8489 | 2184 | |||
| 9194 | 2036 | |||
| 9859 | 1849 | |||
| 10562 | 1673 | |||
| 1450 | 2856 | 634 | 1.1 | |
| 3208 | 620 | |||
| 3540 | 603 | |||
| 3893 | 577 | |||
| 4245 | 543 | |||
| 4597 | 506 | |||
| 4929 | 460 | |||
| 5281 | 416 | |||
| 5A | 2900 | 7728 | 3187 | 15 |
| 8855 | 3145 | |||
| 9928 | 3074 | |||
| 11054 | 1962 | |||
| 12128 | 2792 | |||
| 13255 | 2567 | |||
| 14328 | 2335 | |||
| 15455 | 2019 | |||
| 1450 | 3864 | 790 | 2.2 | |
| 4427 | 780 | |||
| 4964 | 762 | |||
| 5527 | 735 | |||
| 6064 | 693 | |||
| 6628 | 637 | |||
| 7164 | 580 | |||
| 7728 | 502 | |||
| 6C | 1450 | 6677 | 1139 | 4 |
| 7650 | 1124 | |||
| 8578 | 1099 | |||
| 9551 | 1059 | |||
| 10476 | 999 | |||
| 11452 | 919 | |||
| 12379 | 836 | |||
| 13353 | 724 | |||
| 960 | 4420 | 498 | 1.5 | |
| 5065 | 492 | |||
| 5679 | 481 | |||
| 6324 | 463 | |||
| 6938 | 437 | |||
| 7582 | 402 | |||
| 8196 | 366 | |||
| 8841 | 317 | |||
| 6C | 1800 | 8288 | 1760 | 7.5 |
| 9497 | 1736 | |||
| 10648 | 1697 | |||
| 11856 | 1635 | |||
| 13008 | 1543 | |||
| 14216 | 1418 | |||
| 15367 | 1291 | |||
| 16576 | 1116 | |||
| 1600 | 7667 | 1389 | 5.5 | |
| 8442 | 1370 | |||
| 9465 | 1339 | |||
| 10539 | 1291 | |||
| 11562 | 1217 | |||
| 12637 | 1119 | |||
| 14734 | 1019 | |||
| 1250 | 5756 | 846 | 3 | |
| 6595 | 835 | |||
| 7395 | 816 | |||
| 8234 | 786 | |||
| 9033 | 742 | |||
| 9873 | 682 | |||
| 10672 | 621 | |||
| 11511 | 537 | |||
| 1120 | 5157 | 679 | 2.2 | |
| 5909 | 670 | |||
| 6626 | 655 | |||
| 7379 | 631 | |||
| 8094 | 595 | |||
| 8846 | 547 | |||
| 9562 | 498 | |||
| 10134 | 431 | |||
| 1000 | 4605 | 541 | 2.2 | |
| 5276 | 534 | |||
| 5916 | 522 | |||
| 6587 | 503 | |||
| 7227 | 474 | |||
| 7898 | 436 | |||
| 8538 | 397 | |||
| 9209 | 344 | |||
| 8C | 1800 | 19646 | 3143 | 30 |
| 22511 | 3101 | |||
| 25240 | 3032 | |||
| 28105 | 2920 | 37 | ||
| 30834 | 2754 | |||
| 33699 | 2531 | |||
| 36427 | 2303 | |||
| 1600 | 17463 | 2478 | 22 | |
| 20010 | 2445 | |||
| 22435 | 2390 | |||
| 24982 | 2303 | 30 | ||
| 27408 | 2171 | |||
| 29954 | 1996 | |||
| 32380 | 1816 | |||
| 1250 | 13643 | 1507 | 11 | |
| 15633 | 1487 | |||
| 17527 | 1454 | |||
| 19517 | 1401 | |||
| 21412 | 1321 | |||
| 23402 | 1215 | |||
| 25297 | 1106 | |||
| 1120 | 12224 | 1209 | 7.5 | |
| 14007 | 1193 | |||
| 15705 | 1166 | |||
| 17487 | 1124 | |||
| 19185 | 1060 | 11 | ||
| 20968 | 975 | |||
| 22666 | 887 | |||
| 1000 | 10914 | 963 | 5.5 | |
| 12506 | 950 | |||
| 14022 | 929 | |||
| 15164 | 895 | |||
| 17310 | 844 | 7.5 | ||
| 18721 | 777 | |||
| 20237 | 707 | |||
| 900 | 9823 | 779 | 4 | |
| 11255 | 769 | |||
| 12620 | 752 | |||
| 14052 | 725 | 5.5 | ||
| 15417 | 683 | |||
| 16849 | 629 | |||
| 18213 | 572 | |||
| 10C | 1120 | 31237 | 1902 | 30 |
| 34006 | 1877 | |||
| 36775 | 1801 | |||
| 39146 | 1714 | |||
| 41451 | 1618 | |||
| 43722 | 1505 | |||
| 1000 | 27890 | 1514 | 18.5 | |
| 30363 | 1494 | |||
| 32835 | 1434 | |||
| 34952 | 1364 | |||
| 37010 | 1288 | |||
| 39039 | 1199 | |||
| 900 | 25101 | 1225 | 15 | |
| 17326 | 1209 | |||
| 29551 | 1161 | |||
| 31457 | 1104 | |||
| 33309 | 1042 | |||
| 35134 | 970 | |||
| 800 | 22312 | 967 | 11 | |
| 24290 | 954 | |||
| 26268 | 916 | |||
| 27961 | 872 | |||
| 29608 | 823 | |||
| 31230 | 766 | |||
| 710 | 19802 | 761 | 7.5 | |
| 21557 | 751 | |||
| 23313 | 721 | |||
| 24816 | 686 | |||
| 26277 | 648 | |||
| 27717 | 603 | |||
| 630 | 17571 | 599 | 5.5 | |
| 19128 | 591 | |||
| 20686 | 568 | |||
| 22019 | 540 | |||
| 23316 | 510 | |||
| 24594 | 475 | |||
| 12C | 1000 | 48195 | 2185 | 45 |
| 53467 | 2156 | |||
| 56739 | 2070 | |||
| 60397 | 1969 | 55 | ||
| 63953 | 1856 | |||
| 67457 | 1729 | |||
| 900 | 43375 | 1767 | 37 | |
| 47220 | 1744 | |||
| 51065 | 1674 | |||
| 54357 | 1593 | |||
| 57557 | 1504 | |||
| 60712 | 1399 | |||
| 800 | 38556 | 1395 | 22 | |
| 41973 | 1376 | |||
| 45391 | 1321 | |||
| 48317 | 1257 | 30 | ||
| 51162 | 1187 | |||
| 53966 | 1104 | |||
| 710 | 34218 | 1097 | 18.5 | |
| 37251 | 1083 | |||
| 40284 | 1040 | |||
| 42882 | 989 | |||
| 45406 | 934 | |||
| 47895 | 869 | |||
| 630 | 30362 | 863 | 15 | |
| 33054 | 852 | |||
| 35745 | 818 | |||
| 38050 | 778 | |||
| 40290 | 735 | |||
| 42498 | 684 | |||
| 560 | 26989 | 682 | 7.5 | |
| 29381 | 673 | |||
| 31774 | 646 | 11 | ||
| 33822 | 615 | |||
| 35812 | 580 | |||
| 37776 | 540 |
| 型號 |
轉速 (rpm) |
風量 (m3/h) |
全壓 (Pa) |
功率 (KW) |
| 3A | 2900 | 1970 | 1196 | 1.5 |
| 2180 | 1167 | |||
| 2430 | 1157 | |||
| 2670 | 1117 | |||
| 2900 | 1068 | |||
| 3130 | 1039 | |||
| 3480 | 892 | |||
| 3830 | 725 | |||
| 1450 | 990 | 304 | 0.75 | |
| 1100 | 294 | |||
| 1220 | 284 | |||
| 1340 | 274 | |||
| 1450 | 265 | |||
| 1560 | 255 | |||
| 1740 | 225 | |||
| 1910 | 176 | |||
| 3.5A | 2900 | 3120 | 1627 | 3 |
| 3460 | 1588 | |||
| 3860 | 1568 | |||
| 4240 | 1509 | |||
| 4600 | 1460 | |||
| 4960 | 1421 | |||
| 5520 | 1205 | |||
| 6070 | 980 | |||
| 1450 | 1560 | 412 | 1.1 | |
| 1750 | 402 | |||
| 1930 | 392 | |||
| 2120 | 382 | |||
| 2300 | 363 | |||
| 2480 | 353 | |||
| 2760 | 304 | |||
| 3040 | 245 | |||
| 4A | 2900 | 4670 | 2316 | 5.5 |
| 5220 | 2078 | |||
| 5760 | 2048 | |||
| 6310 | 1980 | |||
| 6860 | 1901 | |||
| 7410 | 1852 | |||
| 8240 | 1578 | |||
| 9080 | 1274 | |||
| 1450 | 2330 | 529 | 1.1 | |
| 2610 | 519 | |||
| 2880 | 510 | |||
| 3160 | 490 | |||
| 3430 | 480 | |||
| 3710 | 461 | |||
| 4120 | 392 | |||
| 4540 | 323 | |||
| 4.5A | 2900 | 6640 | 2696 | 11 |
| 7440 | 2626 | |||
| 8200 | 2598 | |||
| 8990 | 2510 | |||
| 9790 | 2412 | |||
| 10550 | 2343 | |||
| 11720 | 2000 | |||
| 12920 | 1618 | |||
| 1450 | 3320 | 676 | 1.5 | |
| 3720 | 657 | |||
| 4110 | 647 | |||
| 4510 | 627 | |||
| 4890 | 598 | |||
| 5270 | 588 | |||
| 5860 | 500 | |||
| 6450 | 402 | |||
| 5A | 2900 | 9100 | 3334 | 15 |
| 10200 | 3255 | |||
| 11250 | 3216 | |||
| 12350 | 3099 | |||
| 13410 | 2981 | |||
| 14480 | 2902 | |||
| 16100 | 2471 | |||
| 17720 | 2000 | |||
| 1450 | 4560 | 833 | 2.2 | |
| 5100 | 813 | |||
| 5630 | 804 | |||
| 6180 | 774 | |||
| 6710 | 745 | |||
| 7240 | 725 | |||
| 8050 | 617 | |||
| 8860 | 500 | |||
| 6A | 1450 | 4890 | 1196 | 5.5 |
| 8820 | 1176 | |||
| 9740 | 1157 | |||
| 10700 | 1117 | |||
| 11600 | 1068 | |||
| 12520 | 1039 | |||
| 13920 | 892 | |||
| 15320 | 706 | |||
| 960 | 5230 | 529 | 1.5 | |
| 5840 | 519 | |||
| 6420 | 509 | |||
| 7080 | 490 | |||
| 7680 | 470 | |||
| 8290 | 451 | |||
| 9220 | 402 | |||
| 10100 | 313 | |||
| 7C | 1250 | 10820 | 1206 | 7.5 |
| 12120 | 1186 | |||
| 13340 | 1167 | |||
| 14650 | 1127 | |||
| 15850 | 1078 | |||
| 17150 | 1049 | |||
| 19160 | 902 | |||
| 20850 | 715 | |||
| 1120 | 9650 | 970 | 5.5 | |
| 10830 | 951 | |||
| 11950 | 931 | |||
| 13100 | 902 | |||
| 14200 | 863 | |||
| 15350 | 843 | |||
| 17200 | 725 | |||
| 18800 | 549 | |||
| 7C | 1000 | 8650 | 774 | 4 |
| 9660 | 755 | |||
| 10660 | 745 | |||
| 11700 | 715 | |||
| 12700 | 685 | |||
| 13700 | 666 | |||
| 15300 | 578 | |||
| 16800 | 460 | |||
| 900 | 7780 | 627 | 3 | |
| 8690 | 608 | |||
| 9600 | 598 | |||
| 10500 | 578 | |||
| 11400 | 558 | |||
| 12300 | 539 | |||
| 13800 | 470 | |||
| 15100 | 372 | |||
| 800 | 6920 | 500 | 2.2 | |
| 7730 | 480 | |||
| 8400 | 470 | |||
| 9260 | 460 | |||
| 10160 | 441 | |||
| 10970 | 421 | |||
| 12240 | 372 | |||
| 12440 | 294 | |||
| 8C | 1600 | 21500 | 2490 | 30 |
| 24000 | 2451 | |||
| 26500 | 2422 | |||
| 29200 | 2334 | |||
| 31600 | 2235 | |||
| 34200 | 2177 | |||
| 38100 | 1873 | |||
| 41700 | 1480 | |||
| 1270 | 17100 | 1569 | 15 | |
| 19100 | 1549 | |||
| 21050 | 1529 | |||
| 23200 | 1471 | |||
| 25100 | 1412 | |||
| 27100 | 1372 | |||
| 30200 | 1176 | |||
| 33100 | 931 | |||
| 1120 | 15050 | 1225 | 11 | |
| 16800 | 1206 | |||
| 18550 | 1186 | |||
| 20400 | 1147 | |||
| 22100 | 1098 | |||
| 23900 | 1068 | |||
| 26700 | 921 | |||
| 29200 | 725 | |||
| 1000 | 13450 | 970 | 7.5 | |
| 15000 | 961 | |||
| 16550 | 951 | |||
| 18500 | 912 | |||
| 19750 | 872 | |||
| 21400 | 853 | |||
| 23800 | 735 | |||
| 26050 | 578 | |||
| 900 | 12100 | 784 | 5.5 | |
| 13500 | 774 | |||
| 14900 | 764 | |||
| 16650 | 735 | |||
| 17800 | 706 | |||
| 19250 | 686 | |||
| 21400 | 598 | |||
| 23500 | 470 | |||
| 800 | 10760 | 617 | 4 | |
| 12000 | 612 | |||
| 13250 | 608 | |||
| 14800 | 578 | |||
| 15800 | 558 | |||
| 17130 | 549 | |||
| 19050 | 470 | |||
| 20850 | 353 | |||
| 710 | 9520 | 490 | 3 | |
| 10660 | 470 | |||
| 11750 | 465 | |||
| 13140 | 460 | |||
| 14030 | 441 | |||
| 15000 | 431 | |||
| 16900 | 372 | |||
| 18800 | 294 | |||
| 1170 | 34600 | 2118 | 37 | |
| 39900 | 2079 | |||
| 45000 | 1941 | |||
| 50300 | 1804 | |||
| 53700 | 1618 | |||
| 57100 | 1441 | |||
| 1000 | 29600 | 1539 | 22 | |
| 34100 | 1510 | |||
| 38400 | 1412 | |||
| 42900 | 1314 | |||
| 45900 | 1176 | |||
| 48800 | 1049 | |||
| 940 | 27850 | 1363 | 18.5 | |
| 32050 | 1333 | |||
| 36100 | 1255 | |||
| 40300 | 1167 | |||
| 43200 | 1049 | |||
| 45900 | 931 | |||
| 830 | 24550 | 1059 | 15 | |
| 28300 | 1039 | |||
| 31850 | 970 | |||
| 35600 | 902 | |||
| 38100 | 813 | |||
| 40500 | 725 | |||
| 740 | 21900 | 843 | 11 | |
| 25200 | 823 | |||
| 28400 | 774 | |||
| 31800 | 715 | |||
| 34000 | 647 | |||
| 36100 | 578 | |||
| 10C | 660 | 19500 | 666 | 7.5 |
| 22500 | 657 | |||
| 25300 | 617 | |||
| 28300 | 568 | |||
| 30300 | 509 | |||
| 32200 | 460 | |||
| 12C | 940 | 48200 | 1951 | 55 |
| 55400 | 1922 | |||
| 62400 | 1794 | |||
| 69600 | 1676 | |||
| 74600 | 1490 | |||
| 79300 | 1333 | |||
| 830 | 42500 | 1529 | 37 | |
| 48900 | 1500 | |||
| 55200 | 1402 | |||
| 61500 | 1304 | |||
| 65900 | 1167 | |||
| 70100 | 1039 | |||
| 740 | 37900 | 1216 | 22 | |
| 43600 | 1196 | |||
| 49200 | 1108 | |||
| 54800 | 1039 | |||
| 58700 | 931 | |||
| 62400 | 823 | |||
| 660 | 33800 | 961 | 18.5 | |
| 38900 | 951 | |||
| 43800 | 882 | |||
| 48900 | 823 | |||
| 52400 | 735 | |||
| 55700 | 657 | |||
| 580 | 29700 | 755 | 11 | |
| 34200 | 745 | |||
| 38500 | 686 | |||
| 43000 | 637 | |||
| 46100 | 568 | |||
| 48900 | 509 | |||
| 520 | 26650 | 603 | 7.5 | |
| 30650 | 598 | |||
| 34500 | 549 | |||
| 38550 | 509 | |||
| 41300 | 451 | |||
| 43900 | 402 |
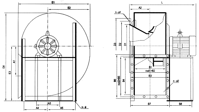
| 型號 | 進風口尺寸 | 出風口尺寸 | |||||||||||
| D1 | D2 | D3 | n-Φ1 | B1 | B2 | B3 | B4 | B5 | B6 | n1×d1 | n2×d2 | n-Φ2 | |
| 2.8A | Φ280 | Φ305 | Φ330 | 8-Φ8.5 | 202 | 234 | 262 | 228 | 258 | 288 | 3×78 | 3×96 | 12-Φ10 |
| 3.2A | Φ320 | Φ350 | Φ380 | 10-Φ9.5 | 230 | 258 | 290 | 260 | 292 | 320 | 3×86 | 4×73 | 14-Φ10 |
| 3.6A | Φ360 | Φ390 | Φ420 | 10-Φ9.5 | 258 | 300 | 338 | 292 | 332 | 372 | 4×75 | 4×86 | 16-Φ10 |
| 4A | Φ400 | Φ430 | Φ460 | 10-Φ9.5 | 286 | 324 | 366 | 324 | 364 | 404 | 4×81 | 4×91 | 16-Φ10 |
| 4.5A | Φ450 | Φ480 | Φ510 | 10-Φ9.5 | 315 | 356 | 395 | 360 | 400 | 440 | 4×89 | 5×80 | 18-Φ10 |
| 5A | Φ500 | Φ540 | Φ580 | 12-Φ9.5 | 350 | 400 | 430 | 400 | 450 | 480 | 4×100 | 5×90 | 18-Φ10 |
| 6A | Φ600 | Φ640 | Φ680 | 12-Φ8.5 | 426 | 475 | 526 | 484 | 534 | 584 | 5×95 | 6×89 | 22-Φ10 |
| 型號 | 電機型號 | 安 裝 尺 寸 | ||||||||||||
| B7 | B8 | A1 | A2 | A3 | A4 | A5 | A6 | A7 | A8 | A9 | A10 | A11 | ||
| 2.8A | Y802-2 | 232 | 199 | 196 | 100 | 125 | 177 | 225 | 125 | 165 | 145 | 125 | 180 | 160 |
| 3.2A | Y90S-2 | 270 | 160 | 226 | 114 | 140 | 190 | 200 | 140 | 200 | 160 | 140 | 190 | 190 |
| Y712-4 | ||||||||||||||
| 3.6A | Y100L-2 | 298 | 160 | 258 | 128 | 140 | 217 | 217 | 140 | 200 | 200 | 140 | 217 | 217 |
| Y802-4 | 150 | |||||||||||||
| 4A | Y132S-2 | 336 | 230 | 282 | 143 | 220 | 230 | 230 | 220 | 230 | 230 | 220 | 230 | 230 |
| Y802-4 | 150 | 130 | 130 | 130 | ||||||||||
| 4.5A | Y132S-2 | 365 | 240 | 319 | 160 | 230 | 240 | 280 | 230 | 290 | 290 | 230 | 280 | 240 |
| Y90S-4 | 150 | 140 | 140 | 140 | ||||||||||
| 5A | Y160M-4 | 400 | 355 | 353 | 177 | 270 | 293 | 293 | 270 | 270 | 270 | 270 | 293 | 293 |
| Y90L-4 | 180 | 150 | 150 | 150 | ||||||||||
| 6A | Y112M-4 | 470 | 185 | 423 | 213 | 195 | 375 | 405 | 195 | 395 | 335 | 195 | 405 | 375 |
| Y100L-6 | 178 | 155 | 155 | 245 | ||||||||||
| 型號 | 電機型號 | 安 裝 尺 寸 | |||||||||||
| E1 | E2 | E3 | E4 | E5 | E6 | E7 | E8 | E9 | E10 | L | n-Φ | ||
| 2.8A | Y802-2 | 496 | 274 | 355 | 587 | 574 | 232 | 290 | 512 | 250 | 592 | 482 | 6-Φ10 |
| 3.2A | Y90S-2 | 554 | 314 | 405 | 671 | 652 | 266 | 330 | 570 | 282 | 668 | 534 | 6-Φ12 |
| Y712-4 | |||||||||||||
| 3.6A | Y100L-2 | 638 | 352 | 460 | 762 | 742 | 304 | 360 | 658 | 313 | 752 | 590 | 6-Φ12 |
| Y802-4 | 565 | ||||||||||||
| 4A | Y132S-2 | 700 | 390 | 480 | 810 | 814 | 330 | 420 | 730 | 350 | 834 | 763 | 6-Φ12 |
| Y802-4 | 602 | ||||||||||||
| 4.5A | Y132S-2 | 778 | 437 | 560 | 929 | 908 | 369 | 460 | 801 | 390 | 929 | 799 | 6-Φ12 |
| Y90S-4 | 942 | ||||||||||||
| 5A | Y160M-4 | 857 | 484 | 610 | 1019 | 1001 | 409 | 500 | 874 | 415 | 1008 | 953 | 6-Φ14 |
| Y90L-4 | 746 | ||||||||||||
| 6A | Y112M-4 | 1032 | 581 | 750 | 1241 | 1206 | 491 | 600 | 1051 | 500 | 1215 | 844 | 6-Φ14 |
| Y100L-6 | 824 | ||||||||||||
| 型號 | 進風口尺寸 | 出風口尺寸 | H1 | H2 | H3 | |||||||||
| D1 | D2 | B1 | B2 | B3 | B4 | B5 | B6 | n-Φ1 | n1×d1 | n2×d2 | ||||
| 6C | Φ600 | Φ640 | 426 | 475 | 526 | 484 | 534 | 584 | 11-Φ12.5 | 5×95 | 6×89 | 830 | 680 | 580 |
| 8C | Φ800 | Φ840 | 560 | 610 | 660 | 640 | 690 | 740 | 22-Φ12.5 | 5×122 | 6×115 | 1040 | 880 | 760 |
| 10C | Φ1000 | Φ1050 | 710 | 762 | 810 | 808 | 858 | 908 | 21-Φ12.5 | 6×127 | 6×143 | 1300 | 1100 | 950 |
| 12C | Φ1200 | Φ1250 | 850 | 910 | 970 | 968 | 1032 | 1088 | 30-Φ12.5 | 7×130 | 8×129 | 1500 | 1300 | 1100 |
| 型號 | 進風口尺寸 | 出風口尺寸 | |||||||||||
| D1 | D2 | D3 | n-Φ1 | B1 | B2 | B3 | B4 | B5 | B6 | n1×d1 | n2×d2 | n-Φ2 | |
| 3A | Φ300 | Φ330 | Φ360 | 8-Φ8.5 | 216 | 246 | 276 | 244 | 276 | 304 | 3×82 | 3×92 | 12-Φ10 |
| 3.5A | Φ350 | Φ380 | Φ410 | 10-Φ8.5 | 251 | 292 | 331 | 284 | 324 | 364 | 4×73 | 4×81 | 16-Φ10 |
| 4A | Φ400 | Φ430 | Φ460 | 10-Φ8.5 | 286 | 324 | 366 | 324 | 364 | 404 | 4×81 | 4×91 | 16-Φ10 |
| 4.5A | Φ450 | Φ480 | Φ510 | 10-Φ8.5 | 315 | 356 | 395 | 360 | 400 | 440 | 4×89 | 5×80 | 18-Φ10 |
| 5A | Φ500 | Φ540 | Φ580 | 12-Φ8.5 | 350 | 400 | 430 | 400 | 450 | 480 | 4×100 | 5×90 | 18-Φ10 |
| 6A | Φ600 | Φ640 | Φ680 | 12-Φ8.5 | 426 | 475 | 526 | 484 | 534 | 584 | 5×95 | 6×89 | 22-Φ10 |
| 型號 | 電機型號 | 安 裝 尺 寸 | ||||||||||||
| B7 | B8 | A1 | A2 | A3 | A4 | A5 | A6 | A7 | A8 | A9 | A10 | A11 | ||
| 3A | Y802-2 | 256 | 140 | 209 | 145 | 125 | 183 | 230 | 125 | 170 | 170 | 125 | 230 | 183 |
| Y701-4 | ||||||||||||||
| 3.5A | Y901-2 | 291 | 160 | 249 | 173 | 140 | 217 | 217 | 140 | 200 | 200 | 140 | 217 | 217 |
| Y801-4 | 150 | |||||||||||||
| 4A | Y132S-2 | 336 | 230 | 282 | 199 | 220 | 230 | 230 | 220 | 230 | 230 | 220 | 230 | 230 |
| Y802-4 | 150 | 130 | 130 | 130 | ||||||||||
| 4.5A | Y132S-2 | 365 | 240 | 319 | 225 | 230 | 240 | 280 | 230 | 290 | 290 | 230 | 280 | 240 |
| Y90S-4 | 150 | 140 | 140 | 140 | ||||||||||
| 5A | Y160M-4 | 400 | 355 | 353 | 251 | 270 | 293 | 293 | 270 | 270 | 270 | 270 | 293 | 293 |
| Y90L-4 | 180 | 150 | 150 | 150 | ||||||||||
| 6A | Y112M-4 | 470 | 185 | 423 | 291 | 195 | 375 | 405 | 195 | 395 | 335 | 195 | 405 | 375 |
| Y100L-6 | 178 | 155 | 155 | 245 | ||||||||||
| 型號 | 電機型號 | 安 裝 尺 寸 | |||||||||||
| E1 | E2 | E3 | E4 | E5 | E6 | E7 | E8 | E9 | E10 | L | n-Φ | ||
| 3A | Y802-2 | 527 | 294 | 380 | 628 | 611 | 249 | 310 | 544 | 260 | 623 | 498 | 6-Φ10.5 |
| Y701-4 | |||||||||||||
| 3.5A | Y901-2 | 612 | 344 | 450 | 741 | 721 | 291 | 345 | 638 | 300 | 731 | 583 | 6-Φ12.5 |
| Y801-4 | 558 | ||||||||||||
| 4A | Y132S-2 | 700 | 390 | 480 | 810 | 814 | 330 | 420 | 730 | 350 | 834 | 763 | 6-Φ12.5 |
| Y802-4 | 602 | ||||||||||||
| 4.5A | Y132S-2 | 778 | 437 | 560 | 929 | 908 | 369 | 460 | 801 | 390 | 929 | 799 | 6-Φ12.5 |
| Y90S-4 | 642 | ||||||||||||
| 5A | Y160M-4 | 857 | 484 | 610 | 1019 | 1001 | 409 | 500 | 874 | 415 | 1008 | 953 | 6-Φ14.5 |
| Y90L-4 | 746 | ||||||||||||
| 6A | Y112M-4 | 1032 | 581 | 750 | 1241 | 1206 | 491 | 600 | 1051 | 500 | 1215 | 844 | 6-Φ14.5 |
| Y100L-6 | 824 | ||||||||||||
| 型號 | B7 | B8 | A1 | A2 | A3 | A4 | E1 | E2 | E3 | E4 | E5 | E6 | E7 | E8 | M1 | L | W |
| 7C | 970 | 1940 | 493 | 252 | 548 | 1058 | 1193 | 677 | 840 | 1412 | 826 | 1439 | 1243 | 1266 | 12 | 2100 | 1190 |
| 8C | 1060 | 2120 | 562 | 283 | 610 | 1121 | 1578 | 168 | 960 | 1608 | 932 | 1578 | 1628 | 1489 | 12 | 2300 | 1270 |
| 10C | 1250 | 2500 | 702 | 358 | 780 | 1385 | 1674 | 962 | 1200 | 2012 | 1156 | 1968 | 1724 | 2018 | 12 | 2700 | 1570 |
| 12C | 1600 | 3200 | 842 | 428 | 920 | 1516 | 2004 | 1152 | 1400 | 2372 | 1386 | 2358 | 2054 | 2408 | 12 | 3400 | 1700 |
訂貨時應注明風機的型號、型號、轉速、風量、壓力、傳動方式、出風口角度、旋轉方向及電動機型號規格。